Avertissement
Vous lisez une ancienne version de cette documentation. Si vous souhaitez obtenir des informations actualisées, veuillez consulter 2025.11 .Trémies pour Asycube 240, 380 et 530
L’option trémie vendue par Asyril comprend :
Fig. 56 Trémies pour Asycube 240, 380 et 530
Le conteneur (voir Interfaces mécaniques) (aussi appelé « réservoir »), recevant les pièces : En fonction de la taille des pièces à alimenter et de l’autonomie souhaitée de la machine, différentes tailles de trémie peuvent être utilisées (1L, 2L, 3L, 10L et 15L). Ces conteneur sont constitués d’acier inoxydable Inox 1.4301.
Le vibrateur linéaire (voir Interfaces mécaniques) : il s’agit de l’actionneur de la trémie qui permet aux pièces du conteneur d’avancer et de tomber sur l’Asycube.
L’Unité de contrôle : utilisée pour régler l’amplitude des vibrations de la trémie
Le jeu de câbles (voir Interfaces électriques) : Trois câbles différents sont inclus dans cet ensemble :
Câble d’alimentation entrant : relie le contrôleur de la trémie au vibrateur linéaire.
Câble de contrôle numérique : relie le contrôleur de la trémie à l’Asycube.
Câble d’alimentation : relie le contrôleur de la trémie à l’alimentation électrique.
Instructions de démarrage rapide
Retirez le contenu de la boîte
Qté 1 - Trémie
Qté 1 - Unité de contrôle de la trémie
Qté 3 - Câbles : Câble d’alimentation entrante, câble d’alimentation vers la trémie, câble de commande numérique
Installez et montez la trémie, pour plus de détails voir Montage.
Montez l’unité de contrôle de la trémie. Pour plus de détails voir Montage.
Connectez le câble de commande numérique à la sortie numérique de l’Asycube et à l’unité de commande de la trémie.
Connectez le câble d’alimentation de la trémie à l’unité de contrôle de la trémie.
Connectez à l’alimentation entrante. Soit 115V ou 230V et 50Hz ou 60Hz.
Important
La tension ET la fréquence d’entrée doivent correspondre à la tension et à la fréquence du mécanisme de vibration de la trémie. Si cela n’est pas respecté, la trémie peut être irrémédiablement endommagée.
Actionnez l’interrupteur ON/OFF de l’unité de contrôle de la trémie en le positionnant sur ON.
Activez la sortie numérique de l’Asycube.
Confirmez que la trémie vibre.
Réglez le niveau de vibration selon vos besoins à l’aide du potentiomètre (0-100 %) sur l’unité de commande de la trémie.
Interfaces électriques
Schéma de câblage
La trémie est livrée avec le contrôleur et les câbles prêts à être installés. Selon le modèle choisi, la trémie doit être alimentée avec :
115V (+10%/-15%), 50Hz, 6A
115V (+10%/-15%), 60Hz, 6A
230V (+10%/-15%), 50Hz, 6A
230V (+10%/-15%), 60Hz, 6A
Important
La tension ET la fréquence d’entrée doivent correspondre à la tension et à la fréquence du mécanisme de vibration de la trémie. Si cela n’est pas respecté, la trémie pourrait être irrémédiablement endommagée.
Numéro |
Signal |
Fils internes |
Câble de l’unité de contrôle de la trémie |
|---|---|---|---|
1 |
L |
Identifié par un 1 ou brun |
|
2 |
N |
Identifié par un 2 ou bleu |
|
3 |
PE |
Mise à terre (vert/jaune) |
Unité de contrôle
Fig. 57 Unité de contrôle
(A) Câble d’alimentation entrant : relie le contrôleur de trémie au vibrateur linéaire.
(B) Câble de commande numérique : relie le contrôleur de la trémie à l’Asycube.
(C) Câble d’alimentation : relie le contrôleur de la trémie à l’alimentation électrique.
L’unité de commande est montée sur un support de montage (A) dont les dimensions sont les suivantes.
Fig. 58 Unité de contrôle
Remarque
Placez l’unité de commande de manière à pouvoir atteindre le potentiomètre.
Interfaces mécaniques
Les différentes variantes de trémies (1L, 2L, 3L, 10L et 15L) peuvent être montées à l’arrière ou sur le côté de l’Asycube. Cela permet des applications telles que le « Dualfeeding », où deux pièces différentes sont alimentées simultanément sur le même Asycube via deux trémies séparées, comme illustré à la Fig. 59.
Fig. 59 Illustration du « monofeeding » vs « dualfeeding »
Remarque
Étant donné que les deux pièces partageront les mêmes paramètres de vibration dans le cas d’une application dualfeeding, une attention particulière doit être apportée à la façon dont les pièces sont combinées. La combinaison d’une pièce très lourde et de grande taille avec une pièce légère de petite taille peut ne pas donner des résultats satisfaisants. Étant donné que de nombreux facteurs peuvent affecter les caractéristiques de vibration, nous vous conseillons vivement d’effectuer d’abord quelques tests préliminaires.
Le tableau ci-dessous résume la taille de la trémie qui peut être utilisée avec l’Asycube dans les applications d’alimentation « monofeeding » ou « dualfeeding » :
Asycube 240 |
Asycube 380 |
Asycube 530 |
|
|---|---|---|---|
Trémie 1L |
mono / dualfeeding |
mono / dualfeeding |
mono / dualfeeding |
Trémie 2L |
monofeeding |
mono / dualfeeding |
mono / dualfeeding |
Trémie 3L |
monofeeding |
mono / dualfeeding |
mono / dualfeeding |
Trémie 10L |
non compatible |
monofeeding |
mono / dualfeeding |
Trémie 15L |
non compatible |
non compatible |
monofeeding |
Remarque
Les trémies 2L et 3L sont livrées avec des pieds de montage qui peuvent être fixés à la base de la machine directement à la bonne hauteur pour un Asycube 240 à l’aide de quatre vis M8x20.
Remarque
Lors du couplage de trémies de 1L, 2L, 3L, 10L et 15L avec l’Asycube 380 et l’Asycube 530, le « KIT DE FIXATION MODULAIRE DE LA TRÉMIE » en option permet de monter la trémie à la hauteur idéale.
Les schémas suivants représentent la hauteur à laquelle les différentes trémies doivent être montées et la position des trous pour fixer la trémie à la plateforme de base de la machine.
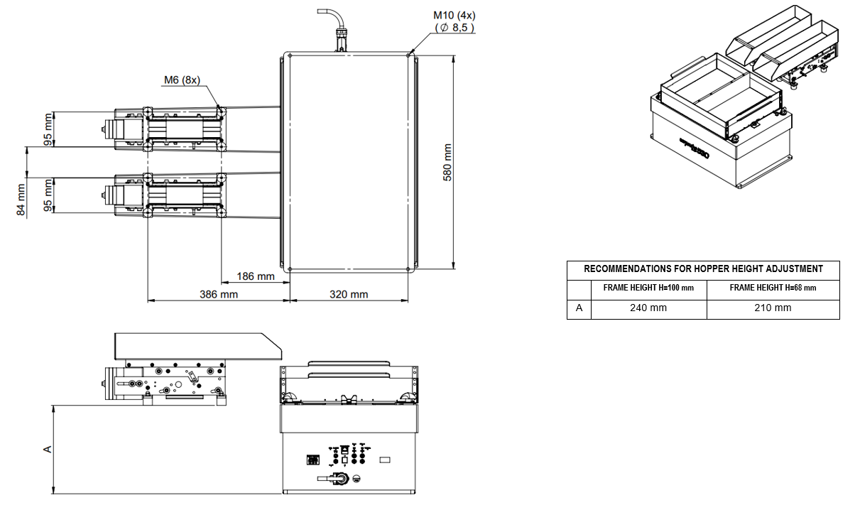
Trémie de 1 L
Trémie de 2 L
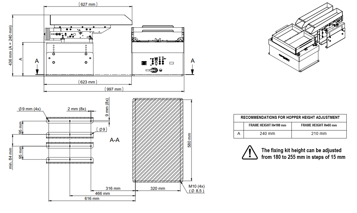
Interfaces mécaniques Trémie de 3 L
Interfaces mécaniques Trémie de 10 L
Asycube 380 monofeeding
Fig. 76 Trémie de 10 L avec kit de fixation (en option selon la liste des produits)
Fig. 77 Trémie de 10 L sans kit de fixation
Interfaces mécaniques Trémie de 15 L
Asycube 530 monofeeding
Fig. 78 Trémie de 15 L avec kit de fixation (en option selon la liste des produits)
Fig. 79 Trémie de 15 L sans kit de fixation
Kit de fixation modulaire
Conseil
Cette section ne concerne que les Asycubes 380/530.
Le kit de fixation modulaire permet de positionner la trémie à une hauteur parfaitement adaptée à aux Asycubes 380/530. Les instructions de montage sont expliquées ci-dessous :
Étape 1
Choisissez la hauteur de fixation et fixez la première moitié avec 2 vis M5.
Remarque
La hauteur du kit de fixation peut être réglée de 180 à 255 mm par pas de 15 mm.
Étape 2
Sécurisez en fixant les 4 vis M8 avec écrous.
Étape 3
Répétez les étapes 1 et 2 pour la seconde moitié.
Étape 4
Fixez le kit de fixation modulaire sur la plateforme de base de la machine, puis fixez la trémie sur le kit de fixation.
















